Fiche technique:
- Réf. : CVE26020
- Type: Terrains
- Superficie totale: 10000 m²
Descriptif:
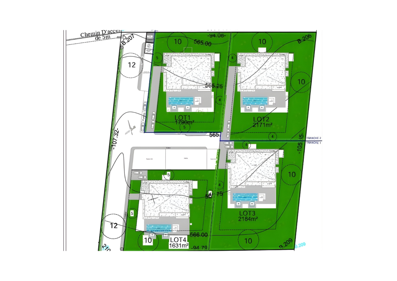
Votre agence immobilière PRESTIGE GALLERY IMMO a le plaisir de vous proposer un terrain exceptionnel à vendre situé sur la Route d’Ourika, à Marrakech, dans une zone SD destinée à l’habitat individuel.
Ce terrain offre un projet résidentiel clé et structuré, parfaitement adapté à la construction de 4 villas individuelles, dans un environnement calme, verdoyant et en plein développement.
Présentation Générale du Terrain:
• Zonage : Zone SD (habitat individuel)
• Superficie totale du terrain : 1 hectare (10 000 m²)
• Prix de vente : 12 000 000 DH
Projet Résidentiel Autorisé
Le terrain permet la réalisation de :
• 4 villas individuelles
• Villas isolées, avec grandes parcelles privatives
• Organisation harmonieuse du projet, idéale pour un développement résidentiel de standing
Les plans existants démontrent une implantation cohérente et équilibrée, laissant place à des espaces extérieurs généreux et une excellente qualité de vie.
Atouts Majeurs
• Emplacement stratégique
• Secteur résidentiel recherché et en forte croissance
• Terrain idéal pour promoteur ou investisseur
• Projet clair, lisible et immédiatement exploitable
• Forte demande pour des villas individuelles dans cette zone
Une opportunité rare à Marrakech, parfaite pour un projet de villas haut standing, combinant superficie, emplacement et potentiel de valorisation à moyen et long terme.
Pour plus d’informations ou pour organiser une visite, contactez PRESTIGE GALLERY IMMO, votre agence immobilière de confiance pour les projets fonciers et d’investissement à Marrakech.
Caractéristique:
- Terrain lotissement plusieurs villas
- Terrain pour construction immeuble


